メニュー
ホーム
知る
住む
体験住宅
移住支援
働く
人材紹介
お問合せ
ホーム
>
空き家バンク
>
【172】野上の空き家
【172】野上の空き家
売買
ガス:プロパンガス 水道:町水道 風呂:灯油 トイレ:簡易水洗 CATV:あり 駐車場:あり 農地:無
住所:
九重町大字野上
atHome
で詳細を見る
360度VRカメラ内覧
写真をクリックして動かすと360度方向の画像を見ることができます。
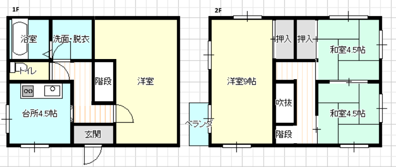
1
洋室
2
浴室
3
洗面
4
トイレ
5
和室
6
和室
7
洋室
8
キッチン
平面図にマウスを当てると拡大します。
見たい部屋の番号を押してください。
1
洋室
2
浴室
3
洗面
4
トイレ
5
和室
6
和室
7
洋室
8
キッチン
TOP